Düz hatlı yalıtımsız alüminyum kapı ve pencere sistemi olup 55 mm kasa derinliğine ve 65 mm kanat derinliğine sahiptir. Et kalınlığı 1,4/1,8/2 mm dir. Normal açılım, çift eksen, vasistas, çekme-sürme, pivot açılım ve çarpma kapı kullanım seçenekleri mevcuttur. Uygulanabilir cam kalınlığı maksimum 36 mm’dir.
Teknik Özellikler
Ürünün teknik özellikleri için pdf katalog dosyasını indirebilirsiniz.
Uygulama Seçenekleri
Kullanım Seçenekleri
İçe Açılır
Vasistas
Dışa Açılır Binili
Dışa-İçe Açılır Hemyüz
Çift Eksen Açılım
Çarpma Kapı
Çek & Sür
Pivot
Kapı
*
*
*
*
*
*
*
Pencere
*
*
*
*
*
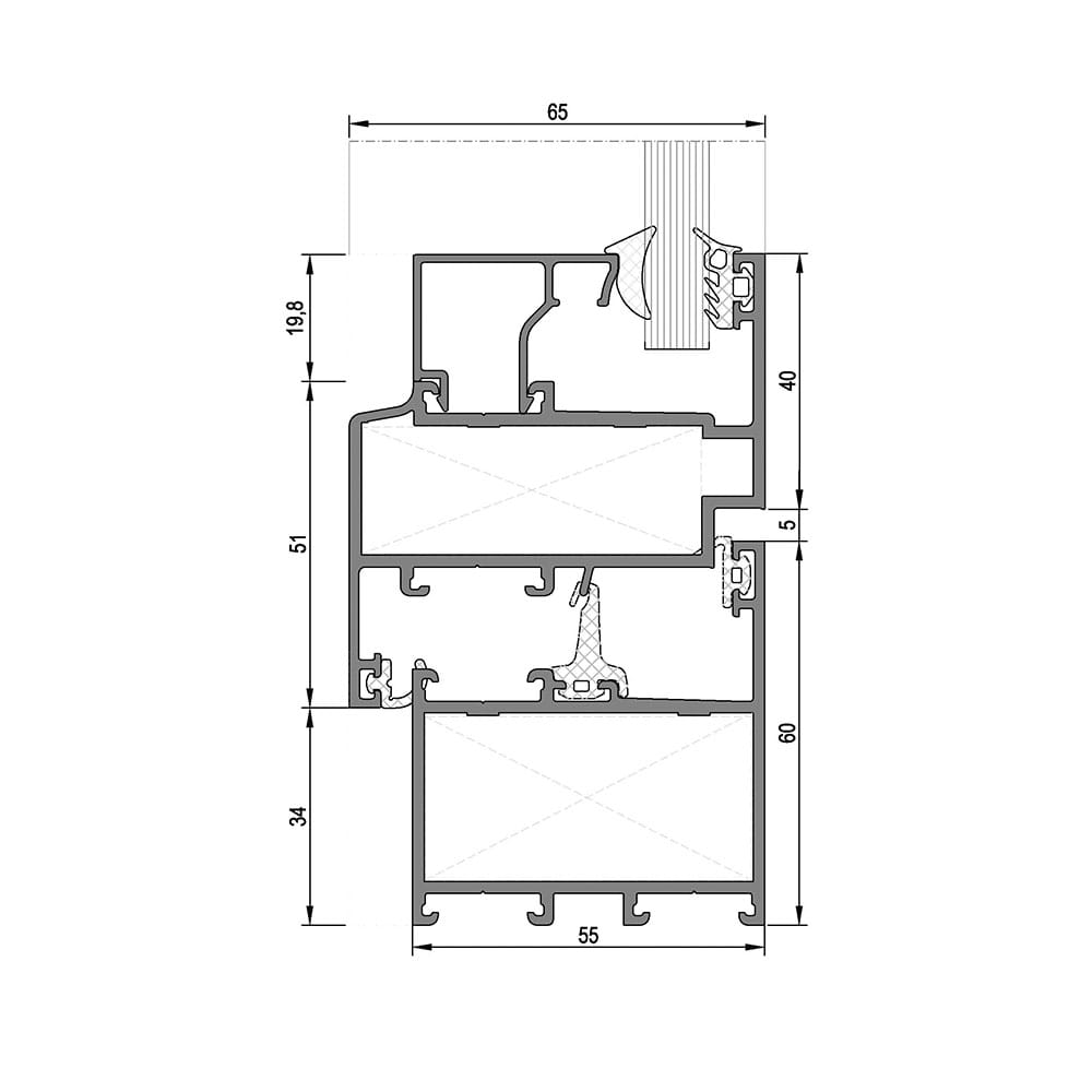
Ürün Ölçüleri
Kasa Derinliği: 55 mm
Kanat Derinliği: 65 mm
Profil Et Kalınlığı: 1,4 / 1,8 / 2 mm
Max. Cam Kalınlığı: 36 mm
Renk Seçenekleri
Elektrostatik toz boya ve eloksal yüzey işlemlerinde tüm renkler uygulanabilmektedir.